HJS(ZSJ)-10直流斷電延時繼電器用途
HJS(ZSJ)-10直流斷電延時繼電器用于直流操作的繼電保護和自動化電路中,作為直流通電后瞬時動作斷電后延時返回的時間元件。
HJS(ZSJ)-10直流斷電延時繼電器工作原理
繼電器的原理框圖如圖1所示。由圖可見,繼電器有晶體振蕩器、分頻器、計數器、 整定開關、驅動電路和電源回路等組成。當繼電器施加額定電壓時,繼電器內部瞬動繼電器和兩個延時執行繼電器瞬時動作,觸點切換,并使電源回路與計時回路斷開,因此計時回路處于失電狀態,以提高繼電器抗干擾性能。當輸入電壓大大降低或完全消失時,瞬動繼電器瞬時返回。(兩個延時執行繼電器仍處于動作狀態) , 觸點也瞬時返回,使儲能電源接通計時回路,晶體振蕩產生時鐘脈沖,經分頻后得到10ms計時脈沖,計數器對計時脈沖計數,當所計脈沖數與整定開關預置值符合時,驅動執行繼電器返回,完成斷電延時返回的功能。

HJS(ZSJ)-10直流斷電延時繼電器使用方法
繼電器面板圖如圖2所示 ,圖中上部三位數字開關整定執行繼電器K1的延時返回時間t1 ,下部三位數字開關整定執行繼電器K2的延時返回時間t2 ,開關的三位數字乘以0.01S即為時間整定值。例如三數字置數為580,則時間整定值=580x0.01S=5.8S。 t1和t2的整定數值可以相等,也可以不相等。
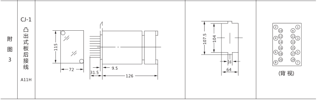
HJS(ZSJ)-10直流斷電延時繼電器背后接線圖
繼電器的接線端子圖如圖3所示 ,圖中觸點為繼電器失電后的狀態,當加上額定直流電壓時,瞬動觸點K3、延時時間為t1的觸點K1和延時時間為t2的觸點K2同時動作,此時觸點狀態與圖3所示相反,當所加電壓突然斷電(失壓)時,瞬動觸點K3立即返回,延時觸點K1在斷電后延時t1才返回,同樣延時觸點K2在斷電后延時t2才返回,返回后觸點狀態如圖3所示。

HJS(ZSJ)-10直流斷電延時繼電器主要技術參數
1.額定電壓;直流220V、110V、48V、24V。
2.保證繼電器觸點可靠通電動作所需電壓不大于70%額定電壓。
3.保證繼電器可靠斷電返回的電壓不小于10%額定電壓。
4.在額定電壓下繼電器斷電延時返回的延時誤差, 在整定范圍內不超過0.1%整定值+10ms.
5.在額定電壓下繼電器斷電延時的變差不超過0.1%額定值+10ms。變差是指繼電器在同一時間整定點上測量五次,實測時間的**值與最小值之差。
6.兩付延時返回的點可各自獨立整定,時間整定范圍均為0.02 -9.99s,而延時整定值可以不同或相同。
7.在額定電壓下繼電器消耗的功率不大于4W。
8.繼電器允許長期承受110%額定電壓。
9.繼電器在電壓不大于250V、電流不大于1A時間常數T= 5±0.75ms直流有感電路中觸點斷開容量為30W。
10.繼電器各電路與外露的非帶電金屬部分之間應能乘受有效值2KV,輸入電路和觸點之間應能承受1? ,50HZ交流電壓,歷時1min實驗,應無絕緣擊穿或閃絡現象。
11.繼電器能在-10 °C- 40 °C溫度范圍內可靠工作。
12.繼電器機械壽命105次,電壽命104次。
HJS(ZSJ)-10直流斷電延時繼電器外形及開孔尺寸






時間繼電器系列
打印當前頁
發郵件給我們: 1932551438@qq.com
手機: 18930817953




