HJS(ZSJ)-20直流斷電延時繼電器技術參數及開孔尺寸-上海上繼科技有限公司
發表時間:2019-10-18 15:29 瀏覽次數:672 〖返回〗
一、 HJS(ZSJ)-20直流斷電延時繼電器用途
HJS(ZSJ)-20直流斷電延時繼電器用于直流操作的繼電保護和自動化電路中,作為直流通電后瞬時動作斷電后延時返回的時間元件。
二、HJS(ZSJ)-20直流斷電延時繼電器生產廠家
上海上繼科技有限公司是一家專業從事電力系統繼電保護及電力自動化的高新技術企業。公司主要生產各種微機綜合保護裝置,電力保護繼電器、電力儀表等產品。公司集研發、設計、生產、銷售和服務于一體,致力于為國內外輸配電、水利、城建、能源、礦山、化工客戶提供一整套從低壓到高壓、從硬件到軟件的系統級整體解決方案和配套服務。公司總部設在上海,全國各地設有辦事機構。
三、HJS(ZSJ)-20直流斷電延時繼電器主要技術參數
1.額定電壓;直流220V、110V、48V、24V。
2.保證繼電器觸點可靠通電動作所需電壓不大于70%額定電壓。
3.保證繼電器可靠斷電返回的電壓不小于10%額定電壓。
4.在額定電壓下繼電器斷電延時返回的延時誤差, 在整定范圍內不超過0.1%整定值+10ms.
5.在額定電壓下繼電器斷電延時的變差不超過0.1%額定值+10ms。變差是指繼電器在同一時間整定點上測量五次,實測時間的**值與最小值之差。
6.兩付延時返回的點可各自獨立整定,時間整定范圍均為0.02 -9.99s,而延時整定值可以不同或相同。
7.在額定電壓下繼電器消耗的功率不大于4W。
8.繼電器允許長期承受110%額定電壓。
9.繼電器在電壓不大于250V、電流不大于1A時間常數T= 5±0.75ms直流有感電路中觸點斷開容量為30W。
10.繼電器各電路與外露的非帶電金屬部分之間應能乘受有效值2KV,輸入電路和觸點之間應能承受1? ,50HZ交流電壓,歷時1min實驗,應無絕緣擊穿或閃絡現象。
11.繼電器能在-10 °C- 40 °C溫度范圍內可靠工作。
12.繼電器機械壽命105次,電壽命104次。
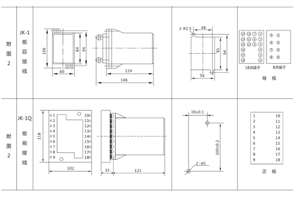
四、HJS(ZSJ)-20直流斷電延時繼電器外形及開孔尺寸

五、HJS(ZSJ)-20直流斷電延時繼電器背后接線圖

公司介紹:上海上繼科技有限公司是一家專業從事電力系統繼電保護及智能電網電力自動化產品的研發、設計、生產、銷售和服務為一體的高科技公司。擁有資深繼電保護專家團隊和國內**的檢測儀器及校驗設備。同時還引用國內外先進技術,來進行技術創新。本公司的產品廣泛用于電力、工礦、鐵路、建筑等國家重大工程輸配變電系統上,產品遠銷東南亞及中東地區。產品通過國家繼電保護及自動化設備質量監督檢驗中心檢測,獲得ISO9001國際質量體系認證?!翱萍紕撔?,誠信務實”是公司的經營理念,本公司以高超的技術支持和對用戶高度負責的售后服務贏得了輸配電成套企業的信賴,且樹立了良好的信譽。
上海上繼科技有限公司(專注電力保護繼電器生產廠家)銷售熱線:021-57233089 QQ:1932551438
{以上內容僅供參考,上海上繼科技有限公司有最終解釋權}
更多繼電器精彩文章——JX-21A集成電路信號繼電器技術參數及說明書





