JSG-D閃光繼電器開孔尺寸及接線圖-上海上繼科技有限公司
發表時間:2019-07-06 13:06 瀏覽次數:1193 〖返回〗
一、JSG-D閃光繼電器的用途
JSG-D靜態閃光繼電器用于信號回路。當啟動回路接通后動作,觸點周期性地接通和斷開,從而使受控的信號燈發出閃光。
二、JSG-D閃光繼電器的特點
本繼電器采用進口集成電路等電子元器件,閃光頻率穩定,不受閃光路數的影響;既可啟動LED節能型信號燈,又可啟動常規白 熾燈型信號燈;功耗小、工作可靠,啟動電流范圍寬,是目前電力系統中理想的更新換代產品。
三、JSG-D閃光繼電器的參數
1、閃光頻率:60±10次/分。
2、最小啟動電流:0.01A,**穩定電流:2A
3、功率消耗:
a、工作回路功率消耗:DC48V時≤1.5W;DC110V時≤3W;DC220V時≤5.5W
b、啟動回路功率消耗:啟動直流電流為2A時≤5.5W。
4、繼電器的啟動和執行由小型大功率繼電器完成。
四、JSG-D閃光繼電器的原理
繼電器由取樣、延時、執行等部分組成(見圖1),裝有二只發光二極管,分別監視電源和執行狀況,繼電器處在靜態時,電源 指示燈發光,當啟動信號加于啟動端時,由于執行繼電器的常閉觸點處于閉合狀態,啟動回路接通;同時取樣部分進行取樣,取樣信 號經延時后,使執行繼電器工作,動作指示燈亮,執行繼電器的常閉觸點斷開,啟動回路斷開,取樣部分無輸入信號;執行部分保持 一段時間后自動斷開,動作指示燈滅,執行繼電器常閉觸點閉合,啟動回路再次接通,取樣部分又有信號輸入……,如此重復上述循環, 執行繼電器的觸點周期性地接通和斷開,產生閃光效果。

五、JSG-D閃光繼電器的接線圖

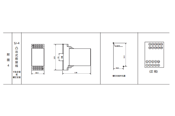
六、JSG-D閃光繼電器的開孔尺寸
JSG-D采用SJ-4殼體,如圖所示

公司介紹:上海上繼科技有限公司是一家專業從事電力系統繼電保護及智能電網電力自動化產品的研發、設計、生產、銷售和服務為一體的高科技公司。擁有資深繼電保護專家團隊和國內**的檢測儀器及校驗設備。同時還引用國內外先進技術,來進行技術創新。本公司的產品廣泛用于電力、工礦、鐵路、建筑等國家重大工程輸配變電系統上,產品遠銷東南亞及中東地區。產品通過國家繼電保護及自動化設備質量監督檢驗中心檢測,獲得ISO-9001:2000國際質量體系認證。“科技創新,誠信務實”是公司的經營理念,本公司以高超的技術支持和對用戶高度負責的售后服務贏得了輸配電成套企業的信賴,且樹立了良好的信譽。
上海上繼科技有限公司(專注電力保護繼電器生產廠家)銷售熱線:021-57233089 QQ:1932551438
{以上內容僅供參考,上海上繼科技有限公司有最終解釋權}
更多繼電器精彩文章——JX-3/2閃光繼電器技術數據及接線圖





