ZJS-41跳閘回路監視繼電器主要用途及開孔尺寸-上海上繼科技有限公司
發表時間:2019-11-01 12:52 瀏覽次數:1117 〖返回〗
一、ZJS-41跳閘回路監視繼電器主要用途
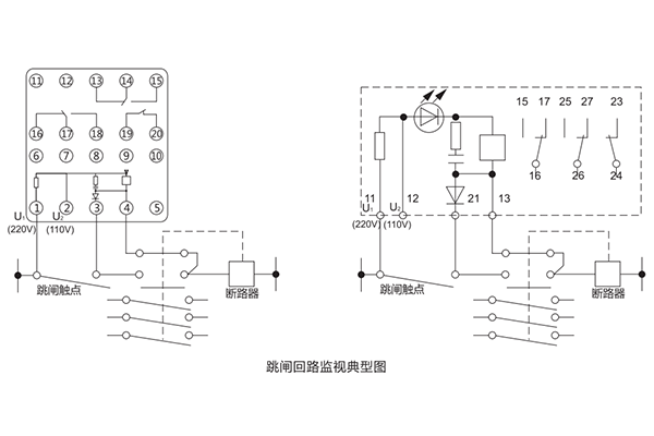
ZJS-41跳閘回路監視繼電器可連續監視斷路器中的直流電源及整個跳閘回路。當直流電源消失、跳閘線圈及引線發生故障,繼電器經0. 3秒延時返回并通過它的觸點發出報警信號。
1、直流電源消失監視。
2、跳閘線圈及引線發生故障監視。
3、斷路器輔助接點的故障監視。
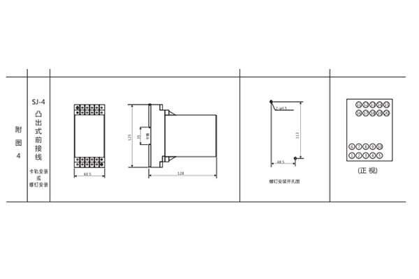
二、ZJS-41跳閘回路監視繼電器外形開孔尺寸

三、ZJS-41跳閘回路監視繼電器工作原理
ZJS-41跳閘回路監視繼電器由一個電磁型輔助繼電器和一個提供返回延時的RC回路組成。在繼電器線圈回路中串接一個發光二極管,當跳閘回路完好時則發光二極管亮(輔助繼電器在動作狀態)。
當斷路器處在“合閘”狀態(參閱圖1),有電流通過發光二極管、輔助繼電器線圈、斷路器輔助觸點,流到跳閘線圈,一旦這個回路開路或直流電源消失,輔助繼電器經一段延時后返回,并通過它的觸點給出報警信號。
若保護繼電器動作跳閘 ,它的跳閘接點將ZJS繼電器短接,經過一定時間(斷路器跳閘時間)后斷路器斷開。它的輔助接點亦就轉換,保護繼電器跳閘接點也返回而斷開,本繼電器通過斷路器另一輔助觸點恢復供電。
該繼電器中的輔助繼電器在下列時間內處于動作狀態
( 1 )保護繼電器跳閘觸點閉合到斷路器跳閘。
( 2 )斷路器輔助觸點率專換到保護繼電器觸點斷開 。
這是通過 RC電路實現的,使輔助繼電器延時后返回,假使斷路器失靈則保護繼電器跳閘觸點保持閉合的時間長于繼電器延時時間,因而ZJS將給出報警信號。

公司介紹:上海上繼科技有限公司是一家專業從事電力系統繼電保護及智能電網電力自動化產品的研發、設計、生產、銷售和服務為一體的高科技公司。擁有資深繼電保護專家團隊和國內**的檢測儀器及校驗設備。同時還引用國內外先進技術,來進行技術創新。本公司的產品廣泛用于電力、工礦、鐵路、建筑等國家重大工程輸配變電系統上,產品遠銷東南亞及中東地區。產品通過國家繼電保護及自動化設備質量監督檢驗中心檢測,獲得ISO9001國際質量體系認證。“科技創新,誠信務實”是公司的經營理念,本公司以高超的技術支持和對用戶高度負責的售后服務贏得了輸配電成套企業的信賴,且樹立了良好的信譽。
上海上繼科技有限公司(專注電力保護繼電器生產廠家)銷售熱線:021-57233089 QQ:1932551438
{以上內容僅供參考,上海上繼科技有限公司有最終解釋權}
更多繼電器精彩文章——JZ-Y-38MT跳位、合位、電源監視中間繼電器主要性能及應用范圍





